the PIVOT
The origin of the PIVOT model came from a thought experiment;
what would it take to create the best and cheapest Tiny House, that is:
- A proper caravan (not just a house with some wheels), to provide assurance and confidence in regard to council
- Complete with every essential:
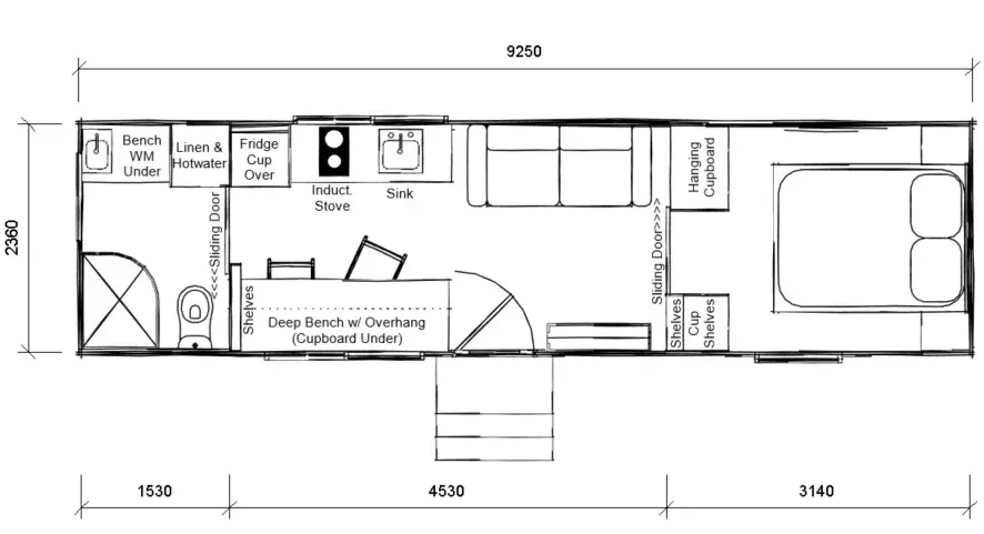
- A bedroom with robe
- A usable bathroom
- A proper kitchen and eating area
- Additional storage
- Enough space that you can have visitors
- No Compromise on build quality
- No Compromise on Safety
- Designed and built for efficiency to minimise wasted material, labor and expense
What emerged was the PIVOT.

9.2 m x 2.4 m
TINY HOUSE
The final price is to be determined
The name PIVOT came from wanting a house that represented the best choice to someone who is wanting to pivot well into their future. There is so much fluff and posture in Tiny House movement all of which creates expense to the end buyer. If a Tiny House is to be a good step forward into the future, that step has to be the greatest and wisest step, not one about fluff and posture.
Wisest does not mean cheap and nasty. There needs to be a sense of aesthetic. The ability to personalise. A Tiny House that in years to come can be looked back on celebrated as a great decision

A Space for everything in your style
Living in a Tiny House doesn't mean that you stop existing. The PIVOT has everything to facilitate life. Robes for the bedroom, extra storage in the kitchen and bathroom. All the internal walls and cupboards can be finished in a myriad of colours and textures to reflect you. There is no losing yourself to accept a predetermined style. It is meant to be about you and your space not just about looking good for social media
